RESIDENCIAL
ASISTENCIAL
HOTELERA
PúBLICA
INDUSTRIAL
REHABILITACIóN
INTERIORISMO
URBANISMO
DISEñO INDUSTRIAL
CONCURSOS
DESTACADOS
CATEGORICO
residencial
asistencial
hotelera
pública
industrial
rehabilitación
interiorismo
urbanismo
diseño industrial
concursos
destacados
CRONOLOGICO
1995 - 2000
2001 - 2006
2007 - 2012
2013 - 2018
2019 - 2024
2025 - 2030
2031 - 2036
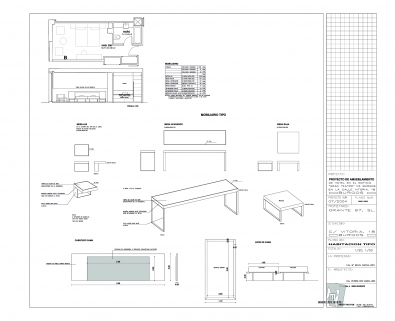
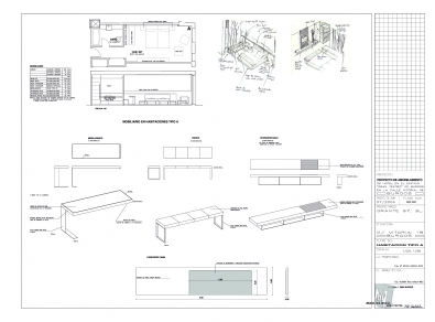
2007
Burgos
Mobiliario Hotel Silken
FICHA
|
PLANOS
2012 Copyright MRA. Marcos Rico Arquitectos |
Política de privacidad
Política de cooKies
|
Aviso legal
Paseo de la Audiencia N? 11, 1? Izda
09003 Burgos [Spain]
42? 20`16`` N 3? 42`24`` W
+34 947 201 833 [ T/F ]
mra@estudiomra.com
www.estudiomra.com
DISE?O Y DESARROLLO SOFTECA